1@stroyklim.com
напишите нам
пн-сб: с 8:30 до 17:30
режим работы
+7 (843) 259-39-17
звонок по России бесплатный
Войти
Избранное
Сравнение
Корзина 0
1@stroyklim.com
напишите нам
пн-сб: с 8:30 до 17:30
режим работы
Мы в соцсетях:
/ Монтаж систем вентиляции в Казани

Монтаж систем вентиляции в Казани


Заказать монтаж
12

дней
на монтаж

320

реализованных
проектов

5

лет гарантия
на все работы

16

специалистов
в штате


Вентиляция должна решать главную задачу — создавать и регулировать правильный состав воздуха в помещении. В соответствии с нормами, воздух в жилом помещении должен обновляться в среднем раз в 1 час. Качественно установленная инженерная сеть обеспечивает высокую производительность, работает бесшумно и четко, простая в управлении, безопасна и имеет эстетичный внешний вид. Вентиляция считается одной из самых сложных в установке системой, поэтому важно доверить монтаж вентиляции в Казани проверенным инженерам и монтажникам компании «СтройКлимат».

Монтаж вентиляции осуществляется в сжатые сроки под инженерным контролем. Мы сотрудничаем с проверенными поставщиками оборудования и расходных материалов. Все действия проводятся аккуратно, в соответствии со строительными нормами и правилами монтажа с соблюдением сроков. Собранная вентиляция проходит индивидуальную проверку и защищается гарантией. Стоимость монтажа складывается из площади помещения, сложности работы, а также типа оборудования и количества расходных материалов.

Схема приточно-вытяжной установки

Схема приточно-вытяжной установки

  1. Гибкая вставка
  2. Воздушная заслонка
  3. Фильтры
  4. Электрический нагреватель 380V
  5. Водяной нагреватель
  6. Охладитель водяной
  7. Увлажнитель сотовый
  8. УФ-Лампа
  9. Вентилятор
  10. Шумоглушитель
  11. Рекуператор

Стоимость монтажа приточных систем в Казани «под ключ»

Лучший выбор
ПРИТОЧНАЯ (до 100 кв.м.)
ПРИТОЧНАЯ (до 100 кв.м.)
  • Монтируем центральную приточную систему
  • В санузлах, гардеробной и кухне монтируем тихую и производительную вытяжку
  • С очисткой и подогревом воздуха
от 188 238 ₽ от 198 147 ₽
Скидка 5%
Выгодная цена
ПРИТОЧНАЯ (до 200 кв.м.)
ПРИТОЧНАЯ (до 200 кв.м.)
  • Монтируем центральную приточную систему
  • В санузлах, гардеробной и кухне монтируем тихую и производительную вытяжку
  • С очисткой и подогревом воздуха
от 329 417 ₽ от 346 755 ₽
Скидка 5%
Лучший выбор
ПРИТОЧНАЯ (до 300 кв.м.)
ПРИТОЧНАЯ (до 300 кв.м.)
  • Монтируем центральную приточную систему
  • В санузлах, гардеробной и кухне монтируем тихую и производительную вытяжку
  • С очисткой и подогревом воздуха
от 376 477 ₽ от 396 291 ₽
Скидка 5%
Рекомендуем
ПРИТОЧНАЯ (до 400 кв.м.)
ПРИТОЧНАЯ (до 400 кв.м.)
  • Монтируем центральную приточную систему
  • В санузлах, гардеробной и кухне монтируем тихую и производительную вытяжку
  • С очисткой и подогревом воздуха
от 470 596 ₽ от 495 365 ₽
Скидка 5%
Рекомендуем
ПРИТОЧНАЯ (до 500 кв.м.)
ПРИТОЧНАЯ (до 500 кв.м.)
  • Монтируем центральную приточную систему
  • В санузлах, гардеробной и кухне монтируем тихую и производительную вытяжку
  • С очисткой и подогревом воздуха
от 658 834 ₽ от 693 511 ₽
Скидка 5%
ПРИТОЧНО-ВЫТЯЖНАЯ ВЕНТИЛЯЦИЯ С РЕКУПЕРАЦИЕЙ (до 100 кв.м.)
ПРИТОЧНО-ВЫТЯЖНАЯ ВЕНТИЛАЦИЯ С РЕКУПЕРАЦИЕЙ (до 100 кв.м.)
от 235 298 ₽ от 252 637 ₽
Скидка 5%
ПРИТОЧНО-ВЫТЯЖНАя ВЕНТИЛЯЦИЯ С РЕКУПЕРАЦИЕЙ (до 200 кв.м.)
ПРИТОЧНО-ВЫТЯЖНАЯ ВЕНТИЛЯЦИЯ С РЕКУПЕРАЦИЕЙ (до 200 кв.м.)
от 376 477 ₽ от 396 291 ₽
Скидка 5%
ПРИТОЧНО-ВЫТЯЖНАЯ ВЕНТИЛЯЦИЯ С РЕКУПЕРАЦИЕЙ (до 300 кв.м.)
ПРИТОЧНО-ВЫТЯЖНАЯ ВЕНТИЛЯЦИЯ С РЕКУПЕРАЦИЕЙ (до 300 кв.м.)
от 423 536 ₽ от 445 828 ₽
Скидка 5%
ПРИТОЧНО-ВЫТЯЖНАЯ ВЕНТИЛЯЦИЯ С РЕКУПЕРАЦИЕЙ (до 400 кв.м.)
ПРИТОЧНО-ВЫТЯЖНАЯ ВЕНТИЛЯЦИЯ С РЕКУПЕРАЦИЕЙ (до 400 кв.м.)
от 517 656 ₽ от 544 902 ₽
Скидка 5%
ПРИТОЧНО-ВЫТЯЖНАЯ ВЕНТИЛЯЦИЯ С РЕКУПЕРАЦИЕЙ (до 500 кв.м.)
ПРИТОЧНО-ВЫТЯЖНАЯ ВЕНТИЛЯЦИЯ С РЕКУПЕРАЦИЕЙ (до 500 кв.м.)
от 705 894 ₽ от 743 052 ₽
Скидка 5%
ПРИТОЧНО-ВЫТЯЖНАЯ ВЕНТИЛЯЦИЯ С РЕКУПЕРАЦИЕЙ (до 600 кв.м.)
ПРИТОЧНО-ВЫТЯЖНАЯ ВЕНТИЛЯЦИЯ С РЕКУПЕРАЦИЕЙ (до 600 кв.м.)
от 800 013 ₽ от 842 122 ₽
Скидка 5%

Стоимость монтажа системы притока воздуха (дополнительно к сплит-системе)

Бризер — это система приточной вентиляции, которая отлично подходит для жилых и офисных помещений.
Небольшой прибор гарантирует поступление свежего воздуха в помещение,даже если окна закрыты.

Рекомендуем
Очиститель
Очиститель
от 13 686 ₽ от 14 700 ₽
Скидка 5%
Выгодная цена
Кондиционер с притоком воздуха
Кондиционер с притоком воздуха
от 16 423 ₽ от 17 640 ₽
Скидка 5%
Акция
Бризер
Бризер
от 11 861 ₽ от 13 524 ₽
Скидка 5%
Лучший выбор
Клапан
Клапан
от 10 036 ₽ от 10 780 ₽
Скидка 5%

Цены на монтаж вентиляции под ключ, актуальный прайс на 13.01.2026

Монтаж вентилятора и приточной установки
производительностью до 300 м2 от 34 004 ₽
производительностью от 300 до 700 м2 от 45 161 ₽
производительностью от 700 до 1500 м2 от 56 317 ₽
производительностью от 1500 до 2000 м3 от 67 473 ₽
производительностью от 2000 до 3000 м2 от 78 629 ₽
Монтаж каркасно-панельной установки от 45 161 ₽
Монтаж вентилятора радиального от 6 114 ₽
Монтаж вентилятора канального производительностью от 1500 до 10000 м2/ч от 22 848 ₽
Монтаж вентилятора канального производительностью от 10000 до 50000 м2/ч от 34 004 ₽
Монтаж крышного вентилятора от 7 229 ₽
Монтаж вентилятора осевого от 1 874 ₽
Монтаж автоматики
Стандартной автоматики от 18 386 ₽
Монтаж воздушной заслонки и привода к нему от 3 883 ₽
Рекуператора от 6 114 ₽
Монтаж пластинчатого рекуператора от 11 692 ₽
Монтаж роторного рекуператора от 38 467 ₽
Монтаж узла обвязки к теплоснабжению от 7 229 ₽
Монтаж диффузоров и клапанов
Камеры статического давления (адаптера) от 1 205 ₽
Диффузора квадратного с адаптером и круглого сечения от 1 205 ₽
Воздушного клапана от 1 205 ₽
Дроссель-клапана от 1 205 ₽
Огнесдерживающего клапана с покрытием от 11 692 ₽
Шумоглушителя до 2000 м2 от 1 652 ₽
Прокладка воздуховодов
Стандартная прокладка гибкого воздуховода от 982 ₽
Стандартная прокладка прямоугольного воздуховода от 1 428 ₽
Стандартная прокладка круглого воздуховода D=100мм. от 872 ₽
Стандартная прокладка круглого воздуховода D=125мм. от 938 ₽
Стандартная прокладка круглого воздуховода D=160мм. от 1 094 ₽
Стандартная прокладка круглого воздуховода D=200мм. от 1 205 ₽
Стандартная прокладка круглого воздуховода D=250мм от 1 428 ₽
Стандартная прокладка круглого воздуховода D=315мм. от 1 652 ₽
Монтаж решеток
Монтаж решетки S до 0,09 м2 от 1 205 ₽
Монтаж решетки S от 0,09 м2 до 0,36 м2 от 1 428 ₽
Монтаж решетки S от 0,36 м2 до 1 м2 от 1 874 ₽
Монтаж решетки S свыше 1 м2 от 2 321 ₽
Монтаж распределителя воздуха (ВЭПШ)
Распределителей воздуха от 4 998 ₽
Получите бесплатную консультацию и стоимость проекта

Бесплатно проконсультируем
по услугам и рассчитаем проект

Рассчитать стоимость

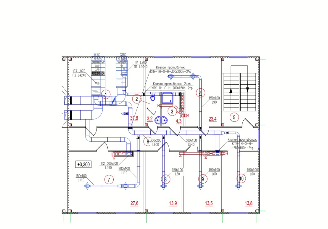
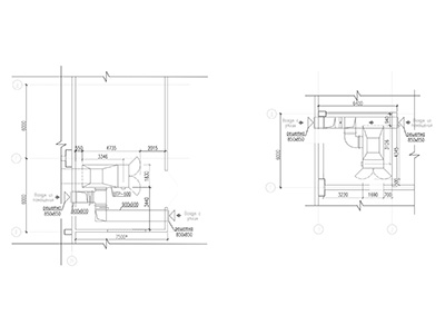
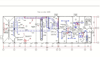
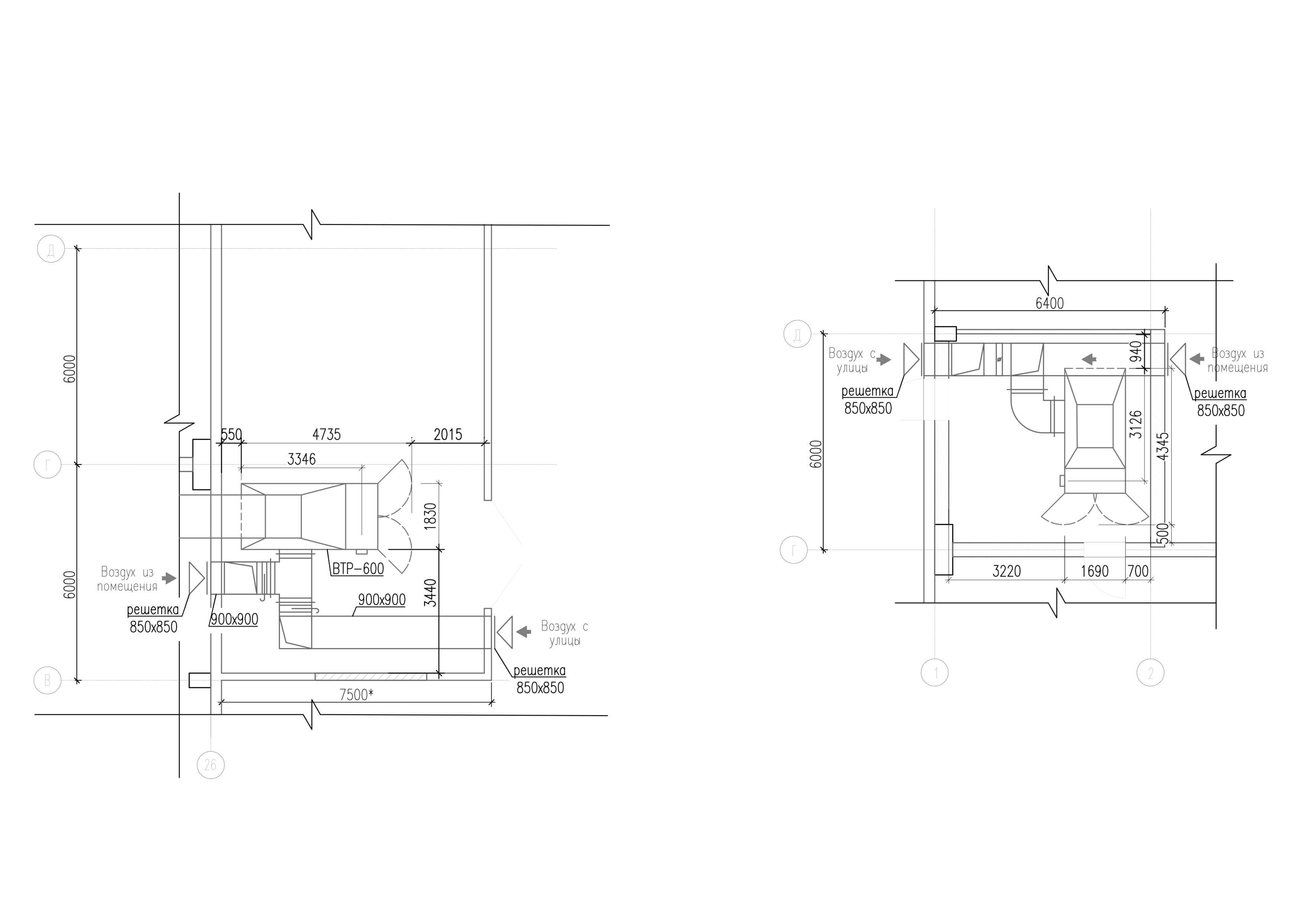
Наши работы по проектированию

Наши работы по проектированию 1 Наши работы по проектированию 2 Наши работы по проектированию 3 Наши работы по проектированию 4 Наши работы по проектированию 5 Наши работы по проектированию 6 Наши работы по проектированию 7

Цены по видам монтажа системы вентиляции в Казани на 13.01.2026

Стоимость монтажа вентилятора и приточной установки, за 1 штуку
Производительностью до 300 м3/ч
47 392 ₽
Производительностью от 300 до 700 м3/ч
71 936 ₽
Производительностью от 700 до 1500 м3/ч
100 942 ₽
Производительностью от 1500 до 2000 м3/ч
129 948 ₽
Монтаж в окно бытового вентилятора в двойной раме, с заменой стекла на оргстекло и термоизоляцией стекла, без учета стоимости расходных материалов
11 692 ₽
Монтаж в окно бытового вентилятора, с заменой стекла на оргстекло и термоизоляцией стекла, без учета стоимости расходных материалов
11 692 ₽
Монтаж канального вентилятора (прямоугольного)
15 039 ₽
Монтаж канального вентилятора (круглого)
9 461 ₽
Монтаж крышного вентилятора
16 154 ₽
Монтаж радиального вентилятора
11 692 ₽
Демонтаж существующей системы вентиляции кв. м. от 604 ₽
Монтаж короба для крышного вентилятора
8 345 ₽
Подъём вентиляторов до проектной отметки комплект 34 004 ₽
Монтаж элементов вентиляции, за 1 штуку
Монтаж привода воздушной заслонки
8 345 ₽
Монтаж огнезадерживающего клапана
13 031 ₽
Монтаж шумоглушителя Ф100-Ф315
3 213 ₽
Монтаж глушителя для прямоугольных воздуховодов
6 114 ₽
Монтаж клапана обратного хода
1 362 ₽
Монтаж дроссель-клапана
1 362 ₽
Монтаж фильтров, за 1 штуку
Фильтра (круглого)
2 990 ₽
Фильтра (прямоугольного)
4 106 ₽
Фильтра вставки
2 321 ₽
Монтаж нагревателей и обвязка, за 1 штуку
Электронагревателя
13 254 ₽
Водонагревателя (без обвязки)
21 063 ₽
Обвязка водонагревателя
27 311 ₽
Монтаж диффузоров и решёток, за 1 штуку
Монтаж фасадной жалюзийной решетки
2 767 ₽
решетки до 400х400
1 874 ₽
решетки до 1000х1000
20 617 ₽
Подрешёток
1 205 ₽
Диффузора Ø от 100 мм до 400 мм
1 428 ₽
Работы по изоляции
Изоляция каналов вентиляции Роквулл Вайред Мат 60 c алюм. фольгой + крепеж м2 2 098 ₽
Изоляция каналов вентиляции Роквулл Вайред Мат 40 c алюм. Фольгой + крепеж м2 1 987 ₽
Огнезащитная изоляция каналов вентиляции (ЕI 120) МБОР - 13Ф (10000х1500х13) стоимость = 363,75р/м2, норма расхода =1,1 м2 1 764 ₽
Огнезащитная изоляция каналов вентиляции (ЕI 90) МБОР - 8Ф (20000х1500х8) стоимость = 222,75р/м2, норма расхода =1,1 м2 1 205 ₽
Огнезащитная изоляция каналов вентиляции (ЕI 60) МБОР - 5Ф (30000х1500х5) стоимость = 186р/м2, норма расхода =1,1 м2 1 205 ₽
Огнезащитная мастика "Плазас" (стоимость 57,75 р/кг, норма расхода 2,8 кг/м2) м2 826 ₽
Изолирование каналов вентиляции пенофолом (без стоимости материала) м2 826 ₽
Изолирование каналов вентиляции минеральной ватой (без стоимости материала) м2 1 005 ₽
Установка автоматики, за 1 штуку
Щит автоматики
31 773 ₽
Элемента автоматики
3 213 ₽
Монтаж автомата
982 ₽
Монтаж щита под автоматы
3 213 ₽
Монтаж электрического кабеля пог.м. 782 ₽
Проверочные действия
Пусконаладка система 13 923 ₽
Пусконаладка + замеры воздуха точка 2 321 ₽
Паспортизация системы шт 8 568 ₽
Монтаж воздуховодов прямоугольных оцинкованных, в том числе фасонных деталей (стоимость фасонных деталей = 15 % стоимости воздуховода), за 1 метр погонный
Монтаж гибкого воздуховода
782 ₽
150х150х0,5
1 339 ₽
200х100х0,5
1 339 ₽
200х150х0,5
1 473 ₽
200х200х0,5
1 473 ₽
250х100х0,5
1 326 ₽
250х150х0,5
1 553 ₽
250х200х0,5
1 558 ₽
250х250х0,5
1 764 ₽
300х100х0,5
1 553 ₽
300х150х0,5
1 558 ₽
300х200х0,5
1 764 ₽
300х250х0,5
1 767 ₽
300х300х0,5
1 996 ₽
400х100х0,5
1 764 ₽
400х150х0,5
1 767 ₽
400х200х0,5
1 996 ₽
400х250х0,5
1 997 ₽
400х300х0,5
2 228 ₽
400х400х0,5
2 437 ₽
500х150х0,5
1 999 ₽
500х200х0,5
2 228 ₽
500х250х0,5
2 210 ₽
500х300х0,5
2 437 ₽
500х400х0,5
2 669 ₽
500х500х0,5
2 879 ₽
600х150х0,5
2 210 ₽
600х200х0,5
2 437 ₽
600х250х0,5
2 442 ₽
600х300х0,5
2 669 ₽
600х350х0,5
2 674 ₽
600х400х0,5
2 879 ₽
600х150х0,7
2 210 ₽
600х200х0,7
2 437 ₽
800х200х0,7
2 879 ₽
600х250х0,7
2 442 ₽
800х250х0,7
2 883 ₽
600х300х0,7
2 669 ₽
800х300х0,7
3 113 ₽
1000х300х0,7
3 998 ₽
600х400х0,7
2 879 ₽
800х400х0,7
3 343 ₽
900х500х0,7
3 963 ₽
1000х400х0,7
4 008 ₽
600х500х0,7
3 113 ₽
800х500х0,7
3 552 ₽
1000х500х0,7
3 995 ₽
1200х500х0,7
4 459 ₽
Монтаж воздуховодов круглых оцинкованных, в том числе фасонных деталей (стоимость фасонных деталей = 15 % стоимости воздуховода), за 1 метр погонный
Воздуховод D100 б=0,8мм
1 318 ₽
Воздуховод D125 б=0,8мм
1 339 ₽
Воздуховод D160 б=0,8мм
1 540 ₽
Воздуховод D180 б=0,8мм
1 562 ₽
Воздуховод D200 б=0,8мм
1 764 ₽
Воздуховод D250 б=0,8мм
1 997 ₽
Воздуховод D315 б=0,8мм
2 221 ₽
Воздуховод D355 б=0,8мм
2 657 ₽
Воздуховод D400 б=0,8мм
826 ₽
Строительные работы для установки воздуховодов
Штробление кирпичных стен, за 1 м.п. шт. 3 325 ₽
Штроба под электрический кабель (кирпич/монолит), за 1 м.п. шт. 3 995 ₽
Штробление бетонных стен, за 1 м.п. шт. 5 110 ₽
Штробление монолитных (высокоармированных) стен, за 1 м.п. шт. 5 110 ₽
Создание отверстий d=100-125 мм кирпич за 10 см шт. 4 106 ₽
Создание отверстий d=160 мм кирпич за 10 см шт. 5 444 ₽
Создание отверстий d=200 мм кирпич за 10 см шт. 6 114 ₽
Создание отверстий d=250 мм кирпич за 10 см шт. 8 345 ₽
Создание отверстий d=315-350 мм кирпич за 10 см шт. 8 792 ₽
Услуги на высоте
Работа альпиниста ₽/день 14 147 ₽
Автомобиль-вышка, высота до 16 м ₽/день 27 534 ₽
Подъем оборудования (свыше 2-го этажа, за каждый этаж), комплект 1 116 ₽
Доставка, монтаж вышки-туры (1 день) 7 007 ₽
Разборка/сборка подвесного потолка, за 1 м2 ₽/м2 1 229 ₽
Разорванный монтаж (2 выезда включено в стоимость), каждый дополнительный выезд 3 213 ₽
Транспортные издержки
Повторный выезд по вине заказчика 5 444 ₽
Осмотр + разметка 3 950 ₽
Прайс-лист на обслуживание систем охлаждения воздуха, цена за 1 систему
Тех. обслуживание. Кондиционеры настенные, потолочные хладопроизводительностью:
до 10 киловатт
6 560 ₽
свыше 10 киловатт
8 792 ₽
Тех. обслуживание. Кондиционеры кассетные и канальные, хладопроизводительностью:
до 10 киловатт
7 453 ₽
свыше 10 киловатт
8 792 ₽
Тех. обслуживание. Кондиционеры прецизионные (со встроенными парогенераторами и без них) хладопроизводительностью:
до 10 киловатт
от 10 799 ₽
до 30 киловатт
от 15 262 ₽
свыше 30 киловатт
от 18 609 ₽
Тех. обслуживание. Чиллеры хладопроизводительностью:
до 100 киловатт 1 блок. 40 698 ₽
от 100 до 250 киловатт 1 блок. 16 000 / 0 ₽
от 250 киловатт 1 блок. 16 000 / 0 ₽
Тех. обслуживание. Фанкойлы настенные, потолочные, кассетные, канальные:
до 5 киловатт 1 блок. 3 883 ₽
до 10 киловатт 1 блок. 3 883 ₽
более 10 киловатт 1 блок. 4 998 ₽
Прайс-лист по установке систем охлаждения и кондиционирования воздуха в помещении, за 1 штуку
Кондиционера мощностью до 1,9 кВт
18 386 ₽
Кондиционера мощностью 2,0 - 2,9 кВт
21 733 ₽
Кондиционера мощностью 3,0 - 4,5 кВт
23 294 ₽
Кондиционера мощностью 4,6 - 5,5 кВт
25 079 ₽
Кондиционера мощностью 5,6 - 7,5 кВт
27 757 ₽
Кондиционера мощностью 7,6 - 9,5 кВт
30 658 ₽
Кондиционера мощностью от 9,6 кВт
от 33 782 ₽
Монтаж подпотолочной, канальной или кассетной системы, за 1 штуку
Кондиционера мощностью 3,0 - 4,5 кВт
25 303 ₽
Кондиционера мощностью 4,6 - 5,5 кВт
27 980 ₽
Кондиционера мощностью 5,6 - 7,5 кВт
30 881 ₽
Кондиционера мощностью 7,6 - 9,5 кВт
34 228 ₽
Кондиционера мощностью от 9,6 кВт
от 36 459 ₽
Монтаж сплит-систем трасса до 3-х метров, за 1 метр погонный
Проводка коммуникаций и пайка
Проводка фреонового трубопровода 6,35/9,52 мм (1/4",3/8" трубы в теплоизоляции, межблочный кабель, дренажный шланг)
2 746 ₽
Проводка фреонового трубопровода 6,35/12,7 мм (1/4",1/2" трубы в теплоизоляции, межблочный кабель, дренажный шланг)
3 103 ₽
Проводка фреонового трубопровода 6,35/15,88 мм (1/4",5/8" трубы в теплоизоляции, межблочный кабель, дренажный шланг)
3 549 ₽
Проводка фреонового трубопровода 9,52/15,88 мм (3/8",5/8" трубы в теплоизоляции, межблочный кабель, дренажный шланг)
3 995 ₽
Проводка фреонового трубопровода 9,52/19,05 мм (3/8",3/4" трубы в теплоизоляции, межблочный кабель, дренажный шланг)
4 442 ₽
Проводка фреонового трубопровода 12,7/19,05 мм (1/2",3/4" трубы в теплоизоляции, межблочный кабель, дренажный шланг)
1 005 ₽
Монтаж пластикового электрокороба 60х60
1 675 ₽
Монтаж пластикового электрокороба 100х60
2 121 ₽
Проводка кабеля питания NYM 3х1,5
1 229 ₽
Проводка кабеля питания NYM 3х1,5 в гофре
1 339 ₽
Проводка дренажа отдельно от фреонового трубопровода
1 339 ₽
Проводка дренажной капиллярной трубки в гофре
1 562 ₽
Паяние медных труб d 6-12 мм точка 1 229 ₽
Паяние медных труб d 15-19 мм точка 1 764 ₽
Сервисные услуги: демонтаж, удаление фасадной плитки, открытие кранов, монтаж козырька шт 5 222 ₽
Бурение отверстий на высоте более 3 м шт 2 990 ₽
Монтаж дополнительного оснащения, за 1 штуку
Дренажной помпы Sauermann SI 2100
17 383 ₽
Дренажной помпы Sauermann SI 2750
19 614 ₽
Зимнего комплекта (подогрев картера компрессора + стабилизатор давления фреона)
17 383 ₽
Подогрева дренажного шланга
3 995 ₽
Монтаж и пусконаладка блока ротации УРК-2Т
37 352 ₽
Монтаж проводного пульта, ИК-приемника
2 657 ₽
Монтаж защитного козырька для наружного модуля
3 549 ₽
Антивандальной защиты для наружного модуля
3 995 ₽
Защитного экрана для внутреннего модуля
3 995 ₽
Гидравлического затвора
6 227 ₽
Ремонт приточных установок и системы подготовки и охлаждения, а так же нагрева воздуха, за 1 штуку
Диагностирование
3 883 ₽
Дозаправка кондиционера хладагентом
6 227 ₽
Очистка фильтров внутреннего модуля
1 764 ₽
Очистка теплообменников внутренних модулей. Обработка дезинфицирующим средством
3 213 ₽
Обработка теплообменников внутренних модулей парогенератором
2 433 ₽
Мытье наружного модуля кондиционера
5 222 ₽
Очистка наружного модуля кондиционера (высоким давлением воздуха)
5 222 ₽
Паяние фреонового трубопровода / 1паечное соединение
1 764 ₽
Ваккумирование фреонового трубопровода
2 990 ₽
Очистка крыльчатки вентилятора внутреннего модуля кондиционера
2 990 ₽
Профилактика дренажного насоса
2 210 ₽
Чистка, продувание, мойка дренажной системы
2 433 ₽
Смена вальцовочного соединения
1 764 ₽
Смена дренажной помпы
6 337 ₽
Смена четырехходового клапана наружного модуля кондиционера
10 799 ₽
Смена компрессора кондиционера
12 808 ₽
Смена электродвигателя вентилятора внутреннего модуля кондиционера
6 337 ₽
Смена электродвигателя вентилятора наружного модуля кондиционера
6 337 ₽
Смена /ремонт теплообменника
8 568 ₽
Разборка/сборка внутреннего модуля кондиционера
3 213 ₽
Разборка/сборка внешнего модуля кондиционера
4 106 ₽
Монтаж/демонтирование защитного ограждения или козырька
4 106 ₽
Поиск и устранение подтекания хладоагента (в зависимости от расположения)
6 337 ₽
Ликвидация дефектов крепления внутреннего модуля
4 106 ₽
Ликвидация дефектов крепления наружного модуля
5 222 ₽
Бурение и штробление, за 1 штуку
Бурение дополнительного отверстия D40 в бетоне, кирпиче до 0,4 м
2 210 ₽
Бурение допополнительного отверстия D20 в бетоне, кирпиче до 0,4 м
1 764 ₽
Штробление 20х20 мм, в газобетоне, в кирпиче
1 764 ₽
Штробление 20х20 мм, в бетоне
2 657 ₽
Штробление 60х40 мм, в газобетоне, в кирпиче 2 433 ₽
Штробление 60х40 мм, в бетоне
3 325 ₽
Штробление 100х40 мм, в газобетоне, в кирпиче
3 883 ₽
Штробление 100х40 мм, в бетоне
3 995 ₽
Другие услуги
Дозаправка фреоном R22 шт 150 / 100 ₽
Заправка фреоном R410 шт 150 / 100 ₽
Заправка фреоном шт 4 329 ₽
Разборка/сборка навесного потолка м.п. 470 / 0 ₽
Опрессовывание системы азотом (манометрические испытания) шт 6 560 ₽
Минимальная стоимость выезда бригады установщиков шт 7 676 ₽
Повторный выезд на замер, консультацию, разметку штроб шт 3 213 ₽
Установка в несколько этапов шт 5 444 ₽
Ложный вызов бригады/альпиниста/отказ в день монтажа шт 5 444 ₽
Работа с фасадом вентиляции (демонтирование/монтаж/вырезка отверстий 1 плитки) шт 3 213 ₽
Установка оборудования клиента шт 3 213 ₽
Подъем 1 кондиционера до 50 кг без лифта шт 488 / 0 ₽

Наши услуги по системам вентиляции

Проектирование вентиляции
от 11 692 ₽Заказать
Поставка и монтаж вентиляции
Поставка и монтаж вентиляции
от 18 386 ₽Заказать
Пусконаладка
Пусконаладка
от 34 004 ₽Заказать
Сервисное обслуживание вентиляции
Сервисное обслуживание вентиляции
от 7 229 ₽Заказать

Преимущества работы с нами

Квалифицированные специалисты

Проектирование и расчёт сметы выполняют квалифицированные специалисты с большим практическим опытом работы.

Уложимся в бюджет

Учитываем все необходимые инженерные показатели, чтобы максимально полно удовлетворить ваши пожелания и уложиться в требуемый бюджет.

Помогаем сэкономить

Помогаем сэкономить, грамотно выбирая оптимальное и максимально рентабельное в вашем случае оборудование.

Качественно

Используем в работе исключительно качественные и неоднократно проверенные в работе расходные материалы и комплектующие.

Опыт работы

Монтажники, прошедшие квалифицированное обучение с большим стажем и опытом работы.

С гарантией

Делаем монтаж – Надёжно. Качественно. С гарантией.

Монтаж системы вентиляции и кондиционирования воздуха включает:

Приток свежего воздуха
Приток свежего воздуха
Отток воздуха
Отток воздуха
Очищение воздуха
Очищение воздуха
Обогрев
Обогрев
Охлаждение
Охлаждение
Увлажнение
Увлажнение
Осушение
Осушение
Ионизацию
Ионизацию

Вентиляция с кондиционированием воздуха

Вентиляции с кондиционированием воздуха необходима для создания комфортных и оптимальных условий микроклимата внутри помещений. Она способна регулировать температуру, влажность воздуха, скорость движения потоков и влиять на самочувствие человека. Проектирование должно проводиться с учетом архитектурных особенностей здания и в соответствии со СНиП.

Проектирование системы вентиляции

Принципы проектирования основываются на создании баланса тепла и влажности воздушной среды внутри помещения или здания. Одновременно учитывается тепло, поступающее с улицы и тепловая энергия, которая формируется внутри помещения. Система кондиционирования призвана готовить и обрабатывать воздух в закрытых помещениях, где вентиляция поддерживает необходимый процент содержания в воздухе кислорода. Поскольку оборудование отличается друг от друга, в проекте предусматриваются как особенности монтажа системы кондиционирования, так и монтаж приточной вентиляции.

Преимущества приобретения оборудования у компании «СтройКлимат»

  • Качественное исполнение Сотрудничаем с проверенными поставщиками, выбираем надежное оборудование, придерживаемся строгих строительных правил и нормативов.
  • Доступные цены Доставляем оборудование на объекты напрямую от производителей без наценки, выполняем монтаж по строгому прайсу.
  • Комплексный подход Выполняем полный спектр монтажа вентиляции, минимизируем затраты и экономим ваше время.

Монтаж климатической системы распределения воздуха с нами

  • индивидуальный подбор оборудования на основе техзадания;
  • согласование план-схемы в соответствии с нормами и пожеланиями заказчика;
  • создание полной сметы на все виды монтажа;
  • профессиональная установка оборудования;
  • автоматизация и пусконаладка;
  • подготовка полного пакета документов.

Этапы установки вентиляции

Монтаж вентиляции — это сложный процесс, который требует тщательной проработки на каждом этапе. Правильно установленная вентиляция обеспечивает качественный воздухообмен, улучшает микроклимат в помещении и повышает комфорт. Установка вентиляции включает несколько ключевых этапов, каждый из которых играет важную роль в конечной эффективности системы.

Основные этапы установки вентиляции:

Этап Описание Примечания
Проектирование системы На этом этапе определяется, какой тип вентиляции будет использоваться, рассчитывается объем воздуха для каждой зоны помещения и выбираются необходимые компоненты (вентиляторы, воздуховоды и фильтры). Проектирование учитывает особенности здания, площадь и требования к воздухообмену.
Подготовка к установке Перед монтажом производится разметка помещений и подготовка мест для установки воздуховодов и оборудования. На этом этапе важно учесть возможность скрытого монтажа для эстетического внешнего вида.
Монтаж воздуховодов Устанавливаются воздуховоды, вентиляторы, фильтры и системы управления. Особое внимание уделяется качеству крепления и герметичности соединений для предотвращения утечек воздуха и обеспечения надежной работы.
Подключение системы управления Настройка управления, автоматизация процессов вентиляции. Для правильной работы вентиляции подключается система управления, которая контролирует подачу воздуха, регулирует скорость вентиляторов и может автоматически поддерживать необходимый микроклимат в помещении.
Тестирование и наладка На завершающем этапе проводится тестирование, проверка герметичности воздуховодов, работа вентиляторов и настройка параметров вентиляции. После успешного тестирования производится ввод системы в эксплуатацию.

Эти этапы обеспечивают правильную установку и долгосрочную работу вентиляции, создавая комфортные условия в помещении и обеспечивая здоровый микроклимат.

Оборудование от ведущих производителей

Мы сотрудничаем с ведущими компаниями, специализирующимися на производстве вентиляционных систем, и предоставляем оборудование и сопутствующие товары от самых лучших производителей.

Breezart - производство вентиляционных установок
Breezart - производство вентиляционных установок, канальных увлажнителей и осушителей, а также систем автоматизации.
ООО «СТ-РАДИАТОР»
ООО «СТ-РАДИАТОР» расположено в г. Ступино, Московская обл. Специализация компании – оборудование для вентиляции.
Вентиляционный завод ИНТЕХ
Вентиляционный завод ИНТЕХ - это производство и продажа энергосберегающего вентиляционного оборудования собственной разработки.
Компания «Астра»
Компания «Астра» — российский производитель и поставщик вентиляционного оборудования в г.Челябинск.
Завод «МАРКА СТАЛИ»
Завод «МАРКА СТАЛИ» — российский производитель и поставщик металлоконструкций.
Завод «СВОК»
Завод «СВОК», г. Чехов. Фирма выпускает и реализует оборудование для вентиляционных систем.
MARSHALL - российский производитель промышленного климатического оборудования.
MARSHALL - российский производитель промышленного климатического оборудования.
WHEIL
«WHEIL» - вентиляционный завод, основанный в Подольске, специализация компании - производство климатических установок.
AirCut
AirCut — компания занимается инженерными решениями, для создания комфортного микроклимата помещений уже более 25 лет.
Циклон - производственно-инжиниринговая компания
Циклон - производственно-инжиниринговая компания, основной деятельностью которой является разработка, проектирование и производство под торговой маркой Cyclone оборудования для систем вентиляции и кондиционирования воздуха.
ROTADO
"ROTADO" - бренд, под которым начат выпуск ротационных дефлекторов среднего ценового сегмента TAS, TNS, TST, при производстве которых применяются материалы более высокого качества и длительного срока эксплуатации.
МВК
«МВК» - компания, главными направлениями деятельности которой являются: разработка, производство противопожарных клапанов и сопутствующего вентиляционного оборудования.
ПК Титан Вентиляционный завод
ПК Титан Вентиляционный завод — российский производитель и поставщик вентиляционного оборудования.
ГЛОБАЛ КЛИМАТ
«ГЛОБАЛ КЛИМАТ» — российская компания, основное направление деятельности - создание промышленного оборудования, таких как: приточные, вытяжные установки и др.
ООО «Вентматик»
ООО «Вентматик» образована в 2016 г., занимается производством вентиляционного оборудования, компактных приточных установок, вентиляторов, датчиков температуры и шкафов управления вентиляцией.
ООО «Поволжье-НВ»
ООО «Поволжье-НВ» — российский производитель и поставщик вентиляционного оборудования. Производство базируется в г. Нижний Новгород.
Компания ООО «ВЕНТАЙЛ»
Компания ООО «ВЕНТАЙЛ» - современное и динамично развивающееся производственное предприятие. С 2011 года компания занимается производством и реализацией изделий для маскировки инженерных коммуникаций.
Завод «ЮГВЕНТКОМ»
Завод «ЮГВЕНТКОМ» — российский производитель и поставщик систем вентиляции.
Daikin - Мировой лидер по производству кондиционеров
Daikin - Мировой лидер по производству кондиционеров.

ООО «Инженерное
оборудование и системы»
г. Балашиха

В качестве своей основной задачи рассматривают разработку, изготовление и поставку оборудования инженерных систем зданий, а также развитие вентиляции и кондиционирования.

Отзывы клиентов

Отзыв клиента 1 Отзыв клиента 2 Отзыв клиента 3 Отзыв клиента 4 Отзыв клиента 5

Наши квалифицированные специалисты в области инженерного дела

Специалист Архипов Сергей Николаевич
Архипов Сергей Николаевич
Инженер, 19 лет опыта
Выбрать специалиста
Специалист Никитин Валерий Никонорович
Никитин
Валерий Никонорович
Инженер, 12 лет опыта
Выбрать специалиста
Специалист Александров Виталий Владимирович
Александров
Виталий Владимирович
Инженер, 11 лет опыта
Выбрать специалиста
Специалист Ильин Александр Витальевич
Ильин
Александр Витальевич
Инженер, 12 лет опыта
Выбрать специалиста
Специалист Кондрашкин Александр Владимирович
Кондрашкин Александр Владимирович
Инженер, 18 лет опыта
Выбрать специалиста

Фотографии наших работ

Связаться с нами

ООО «СтройКлимат»

Оставить заявку
420073, г. Казань, ул. Аделя Кутуя, 110Б

Контакты

Адрес:
420073, г. Казань, ул. Аделя Кутуя, 110Б
Телефон:
E-mail:
Время работы:
пн-сб: с 8:30 до 17:30