Нижний Новгород
stroyklim@mail.ru
напишите нам
пн-сб: с 8:30 до 17:30
режим работы
+7 (831) 213-57-57
звонок по России бесплатный
Проектирование
Обслуживание
Пуско-наладка
Войти
Избранное
Сравнение
Корзина 0
Нижний Новгород
+7 (831) 213-57-57
stroyklim@mail.ru
напишите нам
пн-сб: с 8:30 до 17:30
режим работы
Мы в соцсетях:
/ Монтаж систем вентиляции в Нижнем Новгороде

Монтаж систем вентиляции в Нижнем Новгороде


Заказать монтаж

11

дней на монтаж

238

реализованных проектов

5

лет гарантия на все работы

21

специалист в штате



Система вентиляции устанавливается в помещении один раз и надолго. Это сложная инженерная сеть, которая должна отвечать нескольким требованиям:

  • безопасно выполнять работу по воздухообмену;
  • формировать правильный состав воздуха в помещении;
  • иметь большой срок службы;
  • бесперебойно работать в связке с другими системами.

Монтаж вентиляции должен выполняться профессиональными инженерами и монтажниками, чтобы исключить ошибки и избежать лишних проблем и незапланированных затрат в будущем. Доверьте эту работу опытным профессионалам!

Компания «Стройклимат» занимается проектированием и расчетом вентиляционных систем, монтажом и настройкой, а также гарантийным и сервисным обслуживанием. Монтаж вентиляции проводится в сжатые сроки, на основании точного проекта, с использованием передового оборудования. Сборка узлов и монтаж вентиляции ведутся под чутким контролем, в соответствии с нормами и требованиями. Мы подбираем эффективные решения, опираясь на опыт и минимизируем затраты, выполняя полный комплекс работ по монтажу системы.

Схема приточно-вытяжной установки

Схема приточно-вытяжной установки

  1. Гибкая вставка
  2. Воздушная заслонка
  3. Фильтры
  4. Электрический нагреватель 380V
  5. Водяной нагреватель
  6. Охладитель водяной
  7. Увлажнитель сотовый
  8. УФ-Лампа
  9. Вентилятор
  10. Шумоглушитель
  11. Рекуператор

ВЫБОР ТИПОВ СИСТЕМ ВЕНТИЛЯЦИИ

ПО СПОСОБУ СОЗДАНИЯ ДАВЛЕНИЯ
естественная
принудительная
ПО НАЗНАЧЕНИЮ
приточная
вытяжная
ПО ЗОНЕ ОБСЛУЖИВАНИЯ
общеобменная
местная
ПО КОНСТРУКЦИИ
бесканальная
канальная
ПО ОБРАБОТКЕ ВОЗДУХА
прямоточная
рециркуляционная

Стоимость монтажа приточных систем «под ключ» в Нижнем Новгороде

Выгодная цена
ПРИТОЧНАЯ (до 100 кв.м.)
ПРИТОЧНАЯ (до 100 кв.м.)
  • Монтируем центральную приточную систему
  • В санузлах, гардеробной и кухне монтируем тихую и производительную вытяжку
  • С очисткой и подогревом воздуха
от 192 080 ₽ от 202 191 ₽
Скидка 5%
Лучший выбор
ПРИТОЧНАЯ (до 200 кв.м.)
ПРИТОЧНАЯ (до 200 кв.м.)
  • Монтируем центральную приточную систему
  • В санузлах, гардеробной и кухне монтируем тихую и производительную вытяжку
  • С очисткой и подогревом воздуха
от 336 140 ₽ от 353 832 ₽
Скидка 5%
Рекомендуем
ПРИТОЧНАЯ (до 300 кв.м.)
ПРИТОЧНАЯ (до 300 кв.м.)
  • Монтируем центральную приточную систему
  • В санузлах, гардеробной и кухне монтируем тихую и производительную вытяжку
  • С очисткой и подогревом воздуха
от 384 160 ₽ от 404 379 ₽
Скидка 5%
Лучший выбор
ПРИТОЧНАЯ (до 400 кв.м.)
ПРИТОЧНАЯ (до 400 кв.м.)
  • Монтируем центральную приточную систему
  • В санузлах, гардеробной и кухне монтируем тихую и производительную вытяжку
  • С очисткой и подогревом воздуха
от 480 200 ₽ от 505 474 ₽
Скидка 5%
Рекомендуем
ПРИТОЧНАЯ (до 500 кв.м.)
ПРИТОЧНАЯ (до 500 кв.м.)
  • Монтируем центральную приточную систему
  • В санузлах, гардеробной и кухне монтируем тихую и производительную вытяжку
  • С очисткой и подогревом воздуха
от 672 280 ₽ от 707 664 ₽
Скидка 5%
ПРИТОЧНО-ВЫТЯЖНАЯ ВЕНТИЛЯЦИЯ С РЕКУПЕРАЦИЕЙ (до 100 кв.м.)
ПРИТОЧНО-ВЫТЯЖНАЯ ВЕНТИЛАЦИЯ С РЕКУПЕРАЦИЕЙ (до 100 кв.м.)
от 240 100 ₽ от 257 793 ₽
Скидка 5%
ПРИТОЧНО-ВЫТЯЖНАя ВЕНТИЛЯЦИЯ С РЕКУПЕРАЦИЕЙ (до 200 кв.м.)
ПРИТОЧНО-ВЫТЯЖНАЯ ВЕНТИЛЯЦИЯ С РЕКУПЕРАЦИЕЙ (до 200 кв.м.)
от 384 160 ₽ от 404 379 ₽
Скидка 5%
ПРИТОЧНО-ВЫТЯЖНАЯ ВЕНТИЛЯЦИЯ С РЕКУПЕРАЦИЕЙ (до 300 кв.м.)
ПРИТОЧНО-ВЫТЯЖНАЯ ВЕНТИЛЯЦИЯ С РЕКУПЕРАЦИЕЙ (до 300 кв.м.)
от 432 180 ₽ от 454 927 ₽
Скидка 5%
ПРИТОЧНО-ВЫТЯЖНАЯ ВЕНТИЛЯЦИЯ С РЕКУПЕРАЦИЕЙ (до 400 кв.м.)
ПРИТОЧНО-ВЫТЯЖНАЯ ВЕНТИЛЯЦИЯ С РЕКУПЕРАЦИЕЙ (до 400 кв.м.)
от 528 220 ₽ от 556 022 ₽
Скидка 5%
ПРИТОЧНО-ВЫТЯЖНАЯ ВЕНТИЛЯЦИЯ С РЕКУПЕРАЦИЕЙ (до 500 кв.м.)
ПРИТОЧНО-ВЫТЯЖНАЯ ВЕНТИЛЯЦИЯ С РЕКУПЕРАЦИЕЙ (до 500 кв.м.)
от 720 300 ₽ от 758 216 ₽
Скидка 5%
ПРИТОЧНО-ВЫТЯЖНАЯ ВЕНТИЛЯЦИЯ С РЕКУПЕРАЦИЕЙ (до 600 кв.м.)
ПРИТОЧНО-ВЫТЯЖНАЯ ВЕНТИЛЯЦИЯ С РЕКУПЕРАЦИЕЙ (до 600 кв.м.)
от 816 340 ₽ от 859 308 ₽
Скидка 5%

Стоимость монтажа системы притока воздуха (дополнительно к сплит-системе)

Бризер — это система приточной вентиляции, идеально подходящая для использования в доме, квартире или офисе.
Этот компактный прибор обеспечит свежий воздух в помещении, даже при закрытых окнах.

Лучший выбор
Очиститель
Очиститель
от 13 965 ₽ от 14 700 ₽
Скидка 5%
Акция
Кондиционер с притоком воздуха
Кондиционер с притоком воздуха
от 16 758 ₽ от 17 640 ₽
Скидка 5%
Выгодная цена
Бризер
Бризер
от 12 103 ₽ от 13 524 ₽
Скидка 5%
Рекомендуем
Клапан
Клапан
от 10 241 ₽ от 10 780 ₽
Скидка 5%

Прайс-лист на монтаж вентиляции, цены на 14.04.2026

Монтаж приточных установок от 43 010 ₽
Монтаж канального вентилятора (прямоугольного) от 17 298 ₽
Монтаж канального вентилятора (круглого) от 12 623 ₽
Монтаж водяных магистралей для приточной системы от 7 948 ₽
Монтаж вытяжной вентиляции от 14 960 ₽
Установка бытового вентилятора от 3 273 ₽
Монтаж вентилятора от 3 273 ₽
Монтаж наружных блоков от 10 285 ₽
Монтаж внутренних блоков от 7 948 ₽
Прокладка хладотрассы от 10 285 ₽
Монтаж дренажей от 3 273 ₽
Монтаж настенных пультов от 2 104 ₽
Монтаж вентилятора и приточной установки
до 300 м2 от 44 765 ₽
от 300 до 700 м2 от 59 373 ₽
производительностью от 700 до 1500 м2 от 73 983 ₽
производительностью от 1500 до 2000 м3 от 88 592 ₽
производительностью от 2000 до 3000 м2 от 103 202 ₽
каркасно-панельной от 59 373 ₽
вентилятора радиального от 8 239 ₽
вентилятора канального производительностью от 1500 до 10000 м2/ч от 30 154 ₽
вентилятора канального производительностью от 10000 до 50000 м2/ч от 44 765 ₽
крышного вентилятора от 9 702 ₽
вентилятора осевого от 2 690 ₽
Установка автоматики
Установка стандартной автоматики от 24 310 ₽
Монтаж воздушной заслонки и привода к нему от 5 319 ₽
Установка рекуператора от 8 239 ₽
Монтаж пластинчатого рекуператора от 15 545 ₽
Монтаж роторного рекуператора от 50 608 ₽
Монтаж узла обвязки к теплоснабжению от 9 702 ₽
Установка диффузоров и клапанов
камеры статического давления (адаптера) от 1 812 ₽
диффузора квадратного с адаптером и круглого сечения от 1 812 ₽
воздушного клапана от 1 812 ₽
дроссель-клапана от 1 812 ₽
огнесдерживающего клапана с покрытием от 15 545 ₽
шумоглушителя до 2000 м2 от 2 396 ₽
Прокладка воздуховодов
Стандартная прокладка гибкого воздуховода от 1 520 ₽
Стандартная прокладка прямоугольного воздуховода от 2 104 ₽
Стандартная прокладка круглого воздуховода D=100мм от 350 ₽
Стандартная прокладка круглого воздуховода D=125мм от 1 461 ₽
Стандартная прокладка круглого воздуховода D=160мм от 583 ₽
Стандартная прокладка круглого воздуховода D=200мм от 1 812 ₽
Стандартная прокладка круглого воздуховода D=250мм от 2 104 ₽
Стандартная прокладка круглого воздуховода D=315мм от 2 396 ₽
Установка решеток
решетки S до 0,09 м2 от 1 812 ₽
решетки S от 0,09 м2 до 0,36 м2 от 2 104 ₽
решетки S от 0,36 м2 до 1 м2 от 2 690 ₽
решетки S свыше 1 м2 от 3 273 ₽
Установка распределителя воздуха (ВЭПШ)
распределителей воздуха от 6 779 ₽
Получите бесплатную консультацию и стоимость проекта

ПОЛУЧИТЕ
БЕСПЛАТНУЮ
КОНСУЛЬТАЦИЮ
И СТОИМОСТЬ
ПРОЕКТА

Рассчитать стоимость

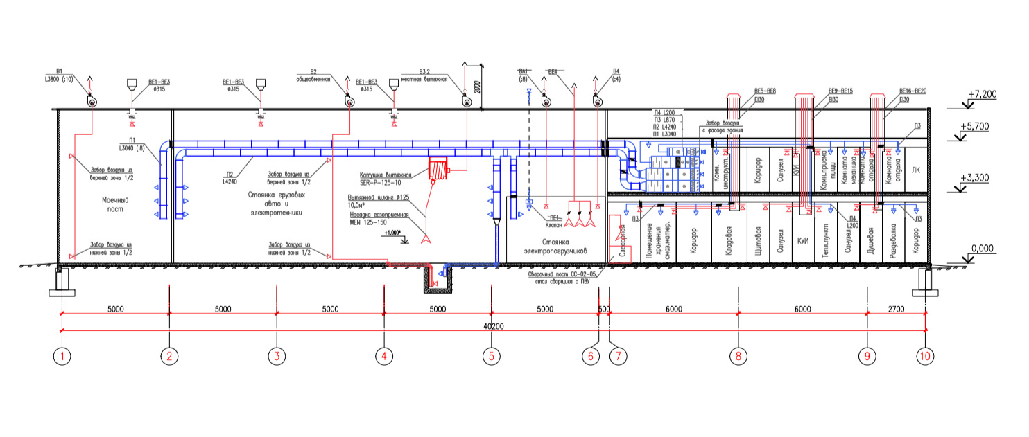
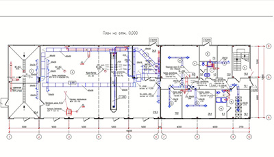
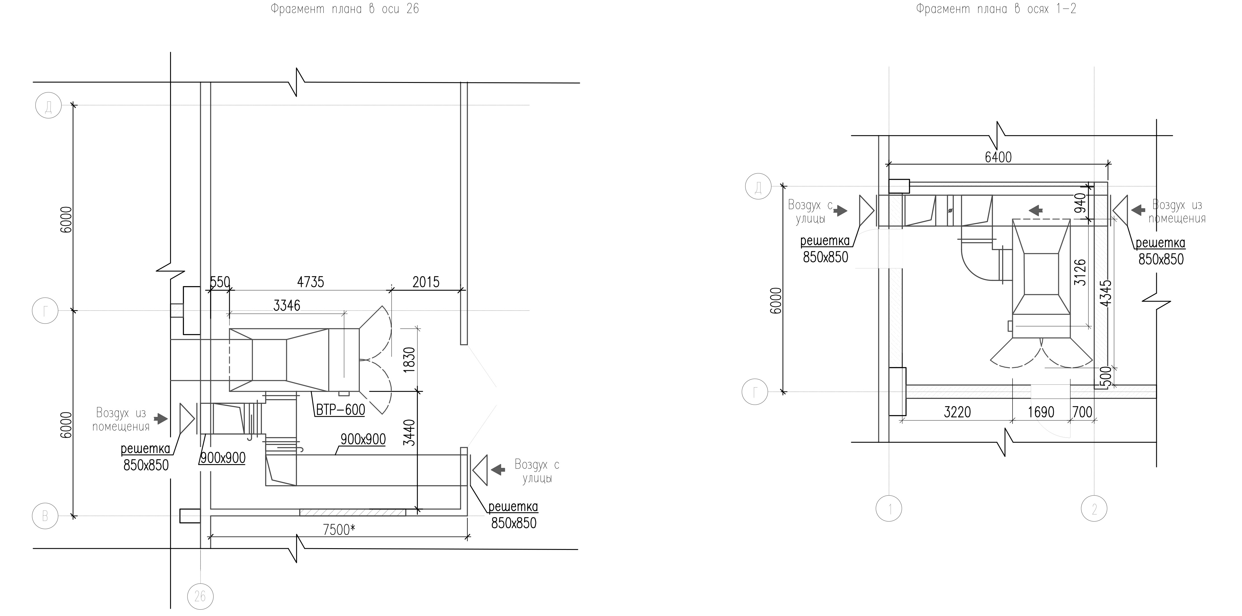
Наши работы по проектированию

Наши работы по проектированию 1 Наши работы по проектированию 2 Наши работы по проектированию 3 Наши работы по проектированию 4 Наши работы по проектированию 5 Наши работы по проектированию 6 Наши работы по проектированию 7

Цены на монтаж дымоудаления в системе вентиляции на 14.04.2026

Работы производится на высоте ниже 3.5 метра

Монтаж воздуховодов дымоудаления м. кв 2 338 ₽
Монтаж воздуховодов в шахте м. кв 2 759 ₽
Огнезащита воздуховодов дымоудаления м. кв 1 824 ₽
Монтаж решетки наружной шт. от 5 143 ₽
Монтаж вентилятора дымоудаления шт. от 24 310 ₽
Монтаж клапанов дымоудаления шт от 4 442 ₽
Монтаж воздушной заслонки и привода к нему шт от 5 610 ₽
Монтаж крышного вентилятора ( с кровельными работами) шт. от 129 498 ₽

Монтаж установок и вентиляторов, цены на 14.04.2026

Компания СтройКлимат проводит полный цикл работ по монтажу систем холодоснабжения. В том числе перечень работ включает:

предварительное обследование объекта бесплатно
проектирование системы до 25 кв. 24 310 ₽
подготовка помещений и камер для размещения оборудования от 12 623 ₽
подбор оборудования и комплектующих (чиллеры, насосные группы, аккумуляторные баки, средства автоматизации, КИП и т.д.) в соответствии с проектными параметрами, их закупка и доставка на объект; от 5 610 ₽
монтаж опорных конструкций до 100 кг. от 2 104 ₽
монтаж опорных конструкций до 500 кг. от 3 273 ₽
монтаж опорных конструкций от 500 до 1500 кг. от 7 948 ₽
монтаж опорных конструкций свыше 1500 кг. от 12 623 ₽
установка оборудования на опорных конструкциях, выполнение обвязки трубопроводами, электромонтажные работы, подключение автоматики; 35 998 ₽
заправка оборудования хладагентом; от 2 104 ₽
проведение пусконаладочных работ, обкатка и испытания системы. от 3 273 ₽
прокладка трубопровода для хладагента до 7 метров от 5 610 ₽
установка сплит-системы до 6 к.вт. от 5 610 ₽
Установка наружного блока до 6 к.вт. от 12 623 ₽

Преимущества работы с нами

Поставщики

Поставки оборудования производим от проверенных поставщиков

Материалы

В работе используем проверенные материалы и оборудование

Стоимость

Специалисты-профессионалы нашей компании производят работы аккуратно и по доступной стоимости

Качественно

Производим установку оборудования с учетом строительных норм и правил монтажа данных систем

Сроки

Соблюдаем сроки монтажа и пусконаладки

Гарантия

На все установленное вентоборудование дается гарантия

Стандарты для вентиляции
в промышленности

К промышленной вентиляции предъявляются более жесткие требования по сравнению с бытовой, что обусловлено большими объемами воздуха и специфическими условиями эксплуатации производственных помещений.

Архитектурные и монтажные нормы
Архитектурные и монтажные нормы требуют, чтобы большое оборудование не размещалось на фасаде здания, чтобы сохранить его эстетическую привлекательность. Также важно придерживаться этих норм в интерьере. Соответственно, при проектировании вентиляционных систем необходимо подбирать оборудование, которое занимает минимальное пространство, но при этом с необходимыми техническими характеристиками и мощностью.
Санитарно-гигиенические нормы

Санитарно-гигиенические нормы определены законодательством, включая СНиП и ГОСТ, с целью создания безопасного микроклимата в помещениях. Это необходимо для того, чтобы сотрудники могли эффективно работать, не рисковали своим здоровьем. Ключевые параметры качества промышленной вентиляции включают:

  • температуру воздуха;
  • влажность;
  • уровень кислорода;
  • объем воздуха на каждого сотрудника;
  • уровень загрязнения.

Кроме того, правильный воздухообмен способствует созданию микроклимата, необходимого для поддержания производственных процессов, таких как поддержание нужной температуры для хранения продуктов или биоматериалов.

Экономические нормы
При проектировании вентиляционных систем основное внимание уделяется снижению потребления электроэнергии. Например, используются рекуператоры, благодаря которым сберегается тепло от загрязненного воздуха, что позволяет подогревать приточный воздух. Поскольку промышленная вентиляция обрабатывает большие объемы воздуха, энергозатраты могут быть значительными. В некоторых регионах установка рекуператора помогает сократить потребление электроэнергии до 80%.
Эксплуатационные

Крайне важно, чтобы оборудование постоянно поддерживало точные параметры вентиляции, необходимые для функционирования производственного помещения. Это требует регулярных плановых осмотров и диагностики, а также замеров и контроля рабочих параметров. Промышленную вентиляцию проверяют не реже одного раза в год, проводят чистку и техническое обслуживание, а также выполняют ремонт и замену отдельных элементов системы при необходимости. Все оборудование должно быть совместимо между собой, поэтому заранее подбираются соответствующие элементы системы.

Наши услуги, цены на 14.04.2026

Проектирование от 12 623 ₽
Поставка и монтаж от 19 635 ₽
Пусконаладка от 35 998 ₽
Сервисное обслуживание от 7 948 ₽

Этапы монтажа вентиляции

Монтаж вентиляции проходит в 6 этапов:

Выезд и проектирование
Подсчет и поставка
Установка и монтаж системы
Проверка и сервисное обслуживание
Оформление документов
Запуск, тестирование показателей и сдача проекта


Выезд и проектирование
Выезд инженера и проектировщика на объект, предварительная оценка стоимости работ.

Подсчет и поставка
Согласование проекта, подсчет стоимости оборудования и подготовка сметы. Выбор системы на основе полученных данных. Подбор сертифицированного оборудования и материалов, завоз инструментов на объект

Установка и монтаж системы
Сборка, монтаж элементов и узлов системы отопления собственной бригадой

Проверка и сервисное обслуживание
Пусконаладочные работы

Оформление документов

Запуск, тестирование показателей и сдача проекта
Приемка работы заказчиком

Виды вентиляции, особенности монтажа и их использования

Естественная вентиляция
Естественная вентиляция

Самый доступный тип вентиляции, который функционирует за счет перепада температур и разницы давления без приборов, электропитания и особого ухода.

Механическая вентиляция
Механическая вентиляция

Система, в которой движение воздуха осуществляется с помощью нагнетательных устройств: вентиляторов, компрессоров, электродвигателей и др.

Приточно-вытяжная вентиляция
Приточно-вытяжная вентиляция

Обеспечивает приток чистого воздуха в помещение и удаляет отработанный воздух из него. Обе функции выполняются одновременно.

 Канальная вентиляция
Канальная вентиляция

Обеспечивает одновременный приток и вытяжку воздуха с помощью шахт. Устанавливается в торговых центрах, офисах, больницах и ресторанах.

Бесканальная вентиляция
Бесканальная вентиляция

Самая простая и компактная система, которая размещается в квартире и не имеет воздуховодов.

Вентиляция с рекуперацией
Вентиляция с рекуперацией

Система возвращает часть тепла назад в помещение посредством теплообмена между потоками для экономии энергии и создания комфортного климата.

Наборная система
Наборная система

Вентиляция, которая собирается из отдельных узлов и подходит для работы в любых помещениях: от маленьких квартир до целых зданий.

Моноблочная система
Моноблочная система

Все элементы системы размещены в едином тепло- и шумоизолированном корпусе, поэтому подходят для размещения в жилых помещениях.

Промышленная система
Промышленная система

Обрабатывает большие объема воздуха в производственных помещениях.

Оборудование от крупнейших производителей

Мы сотрудничаем с компаниями, производящими вентиляционные системы, и предлагаем оборудование и компоненты от лучших производителей.

Breezart - производство вентиляционных установок
Breezart - производство вентиляционных установок, канальных увлажнителей и осушителей, а также систем автоматизации.
ООО «СТ-РАДИАТОР»
ООО «СТ-РАДИАТОР» расположено в г. Ступино, Московская обл. Специализация компании – оборудование для вентиляции.
Вентиляционный завод ИНТЕХ
Вентиляционный завод ИНТЕХ - это производство и продажа энергосберегающего вентиляционного оборудования собственной разработки.
Компания «Астра»
Компания «Астра» — российский производитель и поставщик вентиляционного оборудования в г.Челябинск.
Завод «МАРКА СТАЛИ»
Завод «МАРКА СТАЛИ» — российский производитель и поставщик металлоконструкций.
Завод «СВОК»
Завод «СВОК», г. Чехов. Фирма выпускает и реализует оборудование для вентиляционных систем.
MARSHALL - российский производитель промышленного климатического оборудования.
MARSHALL - российский производитель промышленного климатического оборудования.
WHEIL
«WHEIL» - вентиляционный завод, основанный в Подольске, специализация компании - производство климатических установок.
AirCut
AirCut — компания занимается инженерными решениями, для создания комфортного микроклимата помещений уже более 25 лет.
Циклон - производственно-инжиниринговая компания
Циклон - производственно-инжиниринговая компания, основной деятельностью которой является разработка, проектирование и производство под торговой маркой Cyclone оборудования для систем вентиляции и кондиционирования воздуха.
ROTADO
"ROTADO" - бренд, под которым начат выпуск ротационных дефлекторов среднего ценового сегмента TAS, TNS, TST, при производстве которых применяются материалы более высокого качества и длительного срока эксплуатации.
МВК
«МВК» - компания, главными направлениями деятельности которой являются: разработка, производство противопожарных клапанов и сопутствующего вентиляционного оборудования.
ПК Титан Вентиляционный завод
ПК Титан Вентиляционный завод — российский производитель и поставщик вентиляционного оборудования.
ГЛОБАЛ КЛИМАТ
«ГЛОБАЛ КЛИМАТ» — российская компания, основное направление деятельности - создание промышленного оборудования, таких как: приточные, вытяжные установки и др.
ООО «Вентматик»
ООО «Вентматик» образована в 2016 г., занимается производством вентиляционного оборудования, компактных приточных установок, вентиляторов, датчиков температуры и шкафов управления вентиляцией.
ООО «Поволжье-НВ»
ООО «Поволжье-НВ» — российский производитель и поставщик вентиляционного оборудования. Производство базируется в г. Нижний Новгород.
Компания ООО «ВЕНТАЙЛ»
Компания ООО «ВЕНТАЙЛ» - современное и динамично развивающееся производственное предприятие. С 2011 года компания занимается производством и реализацией изделий для маскировки инженерных коммуникаций.
Завод «ЮГВЕНТКОМ»
Завод «ЮГВЕНТКОМ» — российский производитель и поставщик систем вентиляции.
Daikin - Мировой лидер по производству кондиционеров
Daikin - Мировой лидер по производству кондиционеров.

ООО «Инженерное
оборудование и системы»
г. Балашиха

В качестве своей основной задачи рассматривают разработку, изготовление и поставку оборудования инженерных систем зданий, а также развитие вентиляции и кондиционирования.

Отзывы клиентов

Отзыв клиента 1 Отзыв клиента 2 Отзыв клиента 3 Отзыв клиента 4 Отзыв клиента 5

Наши квалифицированные специалисты в области инженерного дела

Специалист Архипов Сергей Николаевич
Архипов Сергей Николаевич
Инженер, 19 лет опыта
Выбрать специалиста
Специалист Никитин Валерий Никонорович
Никитин
Валерий Никонорович
Инженер, 12 лет опыта
Выбрать специалиста
Специалист Александров Виталий Владимирович
Александров
Виталий Владимирович
Инженер, 11 лет опыта
Выбрать специалиста
Специалист Ильин Александр Витальевич
Ильин
Александр Витальевич
Инженер, 12 лет опыта
Выбрать специалиста
Специалист Кондрашкин Александр Владимирович
Кондрашкин Александр Владимирович
Инженер, 18 лет опыта
Выбрать специалиста

Фотографии наших работ


Контакты

Адрес:
603126, г. Нижний Новгород, ул. Родионова, дом 165, корпус 12, помещение 2
Телефон:
E-mail:
Время работы:
пн-сб: с 8:30 до 17:30