Нижний Новгород
stroyklim@mail.ru
напишите нам
пн-сб: с 8:30 до 17:30
режим работы
+7 (831) 213-57-57
звонок по России бесплатный
Проектирование
Обслуживание
Пуско-наладка
Войти
Избранное
Сравнение
Корзина 0
Нижний Новгород
+7 (831) 213-57-57
stroyklim@mail.ru
напишите нам
пн-сб: с 8:30 до 17:30
режим работы
Мы в соцсетях:
/ Строительство бассейна под ключ в Нижнем Новгороде

Строительство бассейна под ключ в Нижнем Новгороде


Заказать монтаж

11

дней на монтаж

56

реализованных проектов

5

лет гарантия на все работы

21

специалист в штате



Бассейн представляет собой искусственно созданный водоем, предназначенный для купания. Регулярные занятия плаванием помогают укрепить здоровье человека, улучшить самочувствие, а также привести фигуру в порядок. На сегодняшний день уровень техники и современные технологии позволяют возводить надежные и долговечные конструкции, идеально подходящие для отдыха, тренировок и восстановления.

Компания «СтройКлимат» осуществляет строительство бассейнов под ключ в частных домах, спортивных и оздоровительных комплексах, саунах и образовательных учреждениях в Нижнем Новгороде. Квалифицированные специалисты выполнят грамотное проектирование и качественное строительство бассейна в сжатые сроки. На все работы предоставляем гарантию.

Компания гарантирует высочайшее качество и профессиональный подход на каждом этапе строительства бассейна

Выступая в качестве полноцикловой организации, мы осуществляем все этапы создания бассейна, от проектирования и строительства до сервисного обслуживания.

Уделяем особое внимание и заботу о наших клиентах, стремимся предоставить оптимальные решения и комфорт.

В своей работе мы используем современные высокотехнологичные материалы, что позволяет создавать бассейны с отличными эксплуатационными характеристиками.

Мы строим бассейны для дома «под ключ» из:

Все бассейны, которые мы монтируем в зависимости от конструктива материала подразделяются на следующие типы:

Из бетона
Бетонные бассейны изготавливаются из железобетонных конструкций и могут быть различных размеров, начиная от самых маленьких и заканчивая самыми большими бассейнами. Эти виды бассейнов являются предпочтительными и на протяжении многих лет находят свое место в индустрии строительства.
Рассчитать
Из стали (металлический)
Каркасные бассейны на металлической основе – хорошее решение для частного дома или дачи. Такая конструкция имеет высокую прочность, не требует больших затрат сил и времени на сборку и обслуживание. Бассейны со стальными конструкциями универсальны и могут быть установлены на любом дворе, независимо от уровня грунтовых вод.
Рассчитать
Из стекловолокна (композитный)
Бассейны из стекловолокна в современном мире занимают первые места и становятся очень популярными. Они не нуждаются в частом техобслуживании и просты в установке. Стекловолоконные бассейны имеют гладкую поверхность, за счет чего более устойчивы к образованию водорослей и поддерживают более стабильный уровень pH. Еще одним преимуществом является то, что такие бассейны не требуют шлифовки или замены вкладыша.
Рассчитать
Из винила
Бассейны из винила являются недорогим вариантом среди плавательных бассейнов и могут быть установлены всего за несколько недель. Такие бассейны могут быть изготовлены самых разнообразных форм и размеров, различного цвета и дизайна.
Рассчитать
Из полипропилена
Бассейны такого типа изготавливаются из цельных полипропиленовых плит с высокой механической прочностью и устойчивостью к атмосферным воздействиям. Плиты совмещаются друг с другом при помощи диффузионной сварки. Поверхность бассейна получается гладкой, что позволяет легко поддерживать чистоту бассейна. А также этот материал имеет устойчивость к ультрафиолетовому излучению, термостойкость и безопасность для окружающей среды.
Рассчитать
Из нержавейки
Бассейны из нержавеющей стали имеют высокую стойкость и функциональность. Одним из самых главных преимуществ является то, что такие бассейны поставляются готовыми к монтажу, что позволяет установить их за минимальное количество времени. Такие бассейны долговечны, имеют повышенную стойкость к повреждениям и нуждаются в меньшей химической очистке, по сравнению с другими типами бассейнов.
Рассчитать

Цены на строительство бассейна в Нижнем Новгороде на 13.01.2026

Общестроительные работы.
Создание котлована и его подготовка (вручную)3 273 ₽
Подведение всех коммуникаций1 169 ₽
Монтаж опалубки1 637 ₽
Армирование2 104 ₽
Бетонирование6 779 ₽
Разборка опалубки1 053 ₽
Выравнивание1 637 ₽
Омоноличивание закладных элементов1 637 ₽
Гидроизоляция2 690 ₽
Укладка мозаики 2х24 442 ₽
Затирка швов1 637 ₽
Доставка установка чаши из стеклопластика47 685 ₽
Установка оборудования. Пусконаладка.
Монтаж лестницы4 442 ₽
Установка фильтра12 623 ₽
Установка закладных элементов3 273 ₽
Монтаж насоса7 948 ₽
Установка теплообменника5 610 ₽
Установка подсветки3 273 ₽
Установка противотока12 623 ₽
Установка гидромассажа7 948 ₽
Монтаж решетки1 403 ₽
Установка запорной арматуры1 403 ₽
Монтаж трубы1 169 ₽
Установка системы автоматического долива воды12 623 ₽
Монтаж станции дозирования химических реагентов12 623 ₽
Монтаж ультрафиолета для воды3 273 ₽
Консервация12 623 ₽
Пусконаладка24 310 ₽
Разовый вызов5 610 ₽
Обслуживание5 610 ₽
Установка водопадаот 35 998 ₽
Установка донного гейзераот 14 960 ₽
Установка трамплинаот 12 623 ₽

Монтаж бассейна на даче и в частном доме в Нижнем Новгороде

Стационарные бассейны
Представляют собой искусственные водоёмы различной конфигурации и размеров, сооружаемые из бетона, композитных материалов или полипропилена. Строительство стационарных бассейнов – длительный процесс, требующий привлечения квалифицированных специалистов, инженерных расчётов и применения строительной техники.

от 1 176 000 ₽
1 237 900 ₽
Скидка 5%
Рассчитать стоимость
Каркасные бассейны
Являются оптимальным решением для дачных участков, благодаря простоте и скорости монтажа. Конструкция каркасного бассейна включает армированную плёнку, каркас и крепежные элементы. Несмотря на доступную стоимость, установка такого бассейна требует внимательности и опыта, а его чашу необходимо размещать на ровной поверхности или углублять в грунт. К преимуществам каркасных бассейнов относятся простота обслуживания, мобильность, лёгкость сборки и экономичность.

от 686 000 ₽
722 107 ₽
Скидка 5%
Рассчитать стоимость
Полипропиленовые бассейны
Предлагают альтернативу стационарным бетонным бассейнам. Вместо плитки для гидроизоляции и отделки чаши бассейна используются листы полипропилена. Долговечность, быстрота изготовления чаши, ударопрочность и стойкость материала к низким температурам – главные преимущества полипропиленовых бассейнов.

от 784 000 ₽
825 270 ₽
Скидка 5%
Рассчитать стоимость

Цены от вида отделки чаши на 13.01.2026

Рекомендуем
Бассейн из пленки
Из пленки

Размер бассейна 6 на 3 метра

  • Подведение всех коммуникаций.
  • Создание котлована и его подготовка.
  • Общестроительные работы.
  • Гидроизоляция
  • Укладка пленки
  • Монтаж лестницы для бассейна.
  • Монтаж оборудование для бассейна.
  • Подключение обслуживающих систем.
  • Пусконаладочные работы.
  • Обустройство пляжной зоны.
  • Строительно-отделочные материалы включено.
  • Оборудование для бассейна включено.
  • Станция дозирования и химия для бассейна включено.
от 1 274 000₽ от 1 341 130 ₽
Скидка 5%
Хороший выбор
Бассейн из мозайки
Из мозаики

Размер бассейна 6 на 3 метра

  • Подведение всех коммуникаций.
  • Создание котлована и его подготовка.
  • Общестроительные работы.
  • Гидроизоляция
  • Укладка мозаики
  • Монтаж лестницы для бассейна.
  • Монтаж оборудование для бассейна.
  • Подключение обслуживающих систем.
  • Пусконаладочные работы.
  • Обустройство пляжной зоны.
  • Строительно-отделочные материалы включено.
  • Оборудование для бассейна включено.
  • Станция дозирования и химия для бассейна включено.
от 1 862 000₽ от 1 960 000₽
Скидка 5%
Выгодная цена
Бассейн из керамической плитки
Из керамической плитки

Размер бассейна 6 на 3 метра

  • Подведение всех коммуникаций.
  • Создание котлована и его подготовка.
  • Общестроительные работы.
  • Гидроизоляция
  • Укладка плитки
  • Монтаж лестницы для бассейна.
  • Монтаж оборудование для бассейна.
  • Подключение обслуживающих систем.
  • Пусконаладочные работы.
  • Обустройство пляжной зоны.
  • Строительно-отделочные материалы включено.
  • Оборудование для бассейна включено.
  • Станция дозирования и химия для бассейна включено.
от 1 930 600₽ от 2 031 540₽
Скидка 5%
Рекомендуем
Бассейн натурального камня
Из натурального камня

Размер бассейна 6 на 3 метра

  • Подведение всех коммуникаций.
  • Создание котлована и его подготовка.
  • Общестроительные работы.
  • Гидроизоляция.
  • Укладка натурального камня
  • Монтаж лестницы для бассейна.
  • Монтаж оборудование для бассейна.
  • Подключение обслуживающих систем.
  • Пусконаладочные работы.
  • Обустройство пляжной зоны.
  • Строительно-отделочные материалы включено.
  • Оборудование для бассейна включено.
  • Станция дозирования и химия для бассейна включено.
от 2 646 000₽ от 2 785 258₽
Скидка 5%
Хороший выбор
Бассейн из пленки
Из мозаики

Размер бассейна 8 на 3,5 метра

  • Подведение всех коммуникаций.
  • Создание котлована и его подготовка.
  • Общестроительные работы.
  • Гидроизоляция.
  • Укладка мозаики
  • Монтаж лестницы для бассейна.
  • Монтаж оборудование для бассейна.
  • Подключение обслуживающих систем.
  • Пусконаладочные работы.
  • Обустройство пляжной зоны.
  • Строительно-отделочные материалы включено.
  • Оборудование для бассейна включено.
  • Станция дозирования и химия для бассейна включено.
от 2 450 000₽ от 2 578 870₽
Скидка 5%
Выгодная цена
Бассейн из пленки
Из пленки

Размер бассейна 8 на 3,5 метра

  • Подведение всех коммуникаций.
  • Создание котлована и его подготовка.
  • Общестроительные работы.
  • Гидроизоляция.
  • Укладка пленки
  • Монтаж лестницы для бассейна.
  • Монтаж оборудование для бассейна.
  • Подключение обслуживающих систем.
  • Пусконаладочные работы.
  • Обустройство пляжной зоны.
  • Строительно-отделочные материалы включено.
  • Оборудование для бассейна включено.
  • Станция дозирования и химия для бассейна включено.
от 1 666 000₽ от 1 753 612₽
Скидка 5%

В зависимости от используемого материала, монтируемые нами бассейны классифицируются на следующие типы:

Бассейн из бетона в Нижнем Новгороде
Из бетона
Бетонные бассейны изготавливаются из железобетонных конструкций и могут быть различных размеров, начиная от самых маленьких и заканчивая самыми большими бассейнами. Эти виды бассейнов являются предпочтительными и на протяжении многих лет находят свое место в индустрии строительства.
от 1 176 000 ₽ от 1 237 900 ₽
Скидка 5%
Бассейн из стали в Нижнем Новгороде
Из стали (металлический)
Каркасные бассейны на металлической основе – хорошее решение для частного дома или дачи. Такая конструкция имеет высокую прочность, не требует больших затрат сил и времени на сборку и обслуживание. Бассейны со стальными конструкциями универсальны и могут быть установлены на любом дворе, независимо от уровня грунтовых вод.
от 1 274 000 ₽ от 1 341 050 ₽
Скидка 5%
Бассейн из стекловолокна в Нижнем Новгороде
Из стекловолокна (композитный)
Бассейны из стекловолокна в современном мире занимают первые места и становятся очень популярными. Они не нуждаются в частом техобслуживании и просты в установке. Стекловолоконные бассейны имеют гладкую поверхность, за счет чего более устойчивы к образованию водорослей и поддерживают более стабильный уровень pH. Еще одним преимуществом является то, что такие бассейны не требуют шлифовки или замены вкладыша.
от 784 000 ₽ от 825 270 ₽
Скидка 5%
Виниловые бассейны в Нижнем Новгороде
Виниловые бассейны
Бассейны из винила являются недорогим вариантом среди плавательных бассейнов и могут быть установлены всего за несколько недель. Такие бассейны могут быть изготовлены самых разнообразных форм и размеров, различного цвета и дизайна.
от 784 000 ₽ от 825 270 ₽
Скидка 5%
Полипропиленовые бассейны в Нижнем Новгороде
Полипропиленовые бассейны
Бассейны такого типа изготавливаются из цельных полипропиленовых плит с высокой механической прочностью и устойчивостью к атмосферным воздействиям. Плиты совмещаются друг с другом при помощи диффузионной сварки. Поверхность бассейна получается гладкой, что позволяет легко поддерживать чистоту бассейна. А также этот материал имеет устойчивость к ультрафиолетовому излучению, термостойкость и безопасность для окружающей среды.
от 784 000 ₽ от 825 270 ₽
Скидка 5%
Бассейн из нержавеющей стали в Нижнем Новгороде
Бассейны из нержавеющей стали
Бассейны из нержавеющей стали имеют высокую стойкость и функциональность. Одним из самых главных преимуществ является то, что такие бассейны поставляются готовыми к монтажу, что позволяет установить их за минимальное количество времени. Такие бассейны долговечны, имеют повышенную стойкость к повреждениям и нуждаются в меньшей химической очистке, по сравнению с другими типами бассейнов.
от 1 960 000 ₽ от 2063 000 ₽
Скидка 5%

Виды пластиковых бассейнов для частного дома

Акция
Круглый бассейн 1,2х1,5 м
Круглый бассейн 1,2х1,5 м
Круглый бассейн из полипропилена, с размерами 1,2 х 1,5 метра.
Данная емкость характеризуется экологичностью, теплоемкостью и простотой монтажа.
Цвет бассейна – голубой.
Толщина пластика - 5 мм.
Тип бассейна - подземный.
от 61 740₽ от 64 990 ₽
Скидка 5%
Хороший выбор
Круглый бассейн 1,5х1,5 м
Круглый бассейн 1,5х1,5 м
Круглый бассейн из полипропилена, с размерами 1,5 х 1,5 метра. Данная емкость характеризуется экологичностью, теплоемкостью и простотой монтажа. Цвет бассейна – голубой. Толщина пластика - 5 мм. Тип бассейна - подземный.
от 83 300 ₽ от 87 690 ₽
Скидка 5%
Выгодная цена
Круглый бассейн 1,3х1,5 м
Круглый бассейн 1,3х1,5 м
Круглый бассейн из полипропилена, с размерами 1,3 х 1,5 метра. Данная емкость характеризуется экологичностью, теплоемкостью и простотой монтажа. Цвет бассейна – голубой. Толщина пластика - 8 мм. Тип бассейна - подземный.
от 98 686 ₽ от 103 880 ₽
Скидка 5%
Акция
Прямоугольный бассейн 2х1,5х1,5 м
Прямоугольный бассейн 2х1,5х1,5 м
Прямоугольный бассейн из полипропилена, с размерами 2 х 1,5 х 1,5 метра. Данная емкость характеризуется экологичностью, теплоемкостью и простотой монтажа. Цвет бассейна – голубой. Толщина пластика - 5 мм. Тип бассейна - подземный.
от 123 480 ₽ от 129 997 ₽
Скидка 5%
Хороший выбор
Прямоугольный бассейн 2х1,5х1,5 м
Прямоугольный бассейн 2х1,5х1,5 м
Прямоугольный бассейн из полипропилена, с размерами 2 х 1,5 х 1,5 метра. Данная емкость характеризуется экологичностью, теплоемкостью и простотой монтажа. Цвет бассейна – голубой. Толщина пластика - 8 мм. Тип бассейна - подземный.
от 177 576 ₽ от 186 866 ₽
Скидка 5%
Выгодная цена
Прямоугольный бассейн 2х2х1,5 м
Прямоугольный бассейн 2х2х1,5 м
Прямоугольный бассейн из полипропилена, с размерами 2 х 2 х 1,5 метра. Данная емкость характеризуется экологичностью, теплоемкостью и простотой монтажа. Цвет бассейна – голубой. Толщина пластика - 5 мм. Тип бассейна - подземный.
от 146 412 ₽ от 154 125 ₽
Скидка 5%
Акция
Овальный пластиковый бассейн (2х1,5х1,5)
Овальный пластиковый бассейн (2х1,5х1,5)
Овальный бассейн из полипропилена, с размерами 2 х 1,5 х1,5 м. Данная емкость характеризуется экологичностью, теплоемкостью и простотой монтажа. Цвет бассейна – голубой. Толщина пластика - 5 мм. Тип бассейна - подземный.
от 104 468 ₽ от 109 967 ₽
Скидка 5%
Хит продаж
Овальный пластиковый бассейн (2х1,5х1,5)
Овальный пластиковый бассейн (2х1,5х1,5)
Овальный бассейн из полипропилена, с размерами 2 х 1,5 х1,5 м. Данная емкость характеризуется экологичностью, теплоемкостью и простотой монтажа. Цвет бассейна – голубой. Толщина пластика – 8 мм. Тип бассейна - подземный.
от 151 116 ₽ от 159 069 ₽
Скидка 5%
Выгодная цена
Овальный пластиковый бассейн (2,5 х 2 х 1,5)
Овальный пластиковый бассейн (2,5 х 2 х 1,5)
Овальный бассейн из полипропилена, с размерами 2,5 х 2 х1,5 м. Данная емкость характеризуется экологичностью, теплоемкостью и простотой монтажа. Цвет бассейна – голубой. Толщина пластика – 5 мм. Тип бассейна - подземный.
от 144 648 ₽ от 152 263 ₽
Скидка 5%

Для получения информации о стоимости и дополнительных параметрах данного товара, просим вас позвонить к нам по телефону или оставить заявку на сайте. !Обратите внимание! Размеры указаны внешние, с учетом ребер жесткости. Размеры чаши бассейна по периметру на 10 см меньше.

Бесплатная консультация и расчет проекта

Бесплатно проконсультируем
по услугам и рассчитаем проект

Рассчитать стоимость

Наши работы по проектированию бассейнов

Проектирование бассейнов в Нижнем Новгороде 1 Проектирование бассейнов в Нижнем Новгороде 2 Проектирование бассейнов в Нижнем Новгороде 3 Проектирование бассейнов в Нижнем Новгороде 4 Проектирование бассейнов в Нижнем Новгороде 5 Проектирование бассейнов в Нижнем Новгороде 6

Преимущества работы с нами

Мы знаем, что покупка бассейна – это важное решение и крупная инвестиция. Профессионалы нашей компании будут рядом с вами на каждом шагу – от проектирования до строительства и технического обслуживания бассейна.
Индивидуальный дизайн и качественное строительство - наши главные приоритеты.
Соблюдаем возложенные на нас обязательства и последовательно выполняем все работы.
Завершаем наши проекты в срок и в рамках бюджета.

Классифицировать бассейны можно по следующим признакам:

По назначению различают
следующие виды бассейнов:

Частные

Они обычно по размерам меньше общественных бассейнов и предназначены для индивидуального пользования.

Частные бассейны в Нижнем Новгороде
Общественные

Общественные бассейны являются частью крупных развлекательных центров или физкультурно-оздоровительных комплексов. Они представляют собой гидротехнические сооружения различных форм и размеров и предназначаются для общественного пользования. Многие высококлассные отели и курорты также имеют общественные бассейны для своих гостей.

Общественные бассейны в Нижнем Новгороде

По расположению конструкции
бассейны бывают:

Крытые

Крытые бассейны находятся внутри построек, под крышей и изолированы от внешней среды. Такие бассейны обычно строятся для плавания и тренировок в течение всего года, особенно в холодном климате.

Крытые бассейны в Нижнем Новгороде
Открытые

Находятся на открытой местности и предназначены для плавания в теплое время года.

Открытые бассейны в Нижнем Новгороде

Классификация по способу
фильтрации воды:

Переливные

В переливном бассейне вода переливается через весь периметр бассейна в дренажный канал. Из этих каналов вода поступает в резервуар, находящийся ниже уровня бассейна. Отсюда вода забирается на фильтрацию, а потом снова поступает в бассейн.

Переливные бассейны в Нижнем Новгороде
Скиммерные

В скиммерном бассейне вода находится ниже края, так что можно увидеть зазор между краем и водой. На краю таких бассейнов находятся устройства, которые называются скиммерами. Они втягивают воду вместе с грязью и мусором, которая потом проходит через систему фильтрации и возвращается обратно в бассейн.

Cкиммерные бассейны в Нижнем Новгороде

Квалифицированные инженеры в области строительства бассейнов

Специалист Ефимов Александр Сергеевич
Ефимов
Александр Сергеевич
Инженер, 12 лет опыта
Выбрать специалиста
Специалист Антонов Максим Вячеславович
Антонов
Максим Вячеславович
Инженер, 19 лет опыта
Выбрать специалиста
Специалист Андреева Анна Николаевна
Андреева
Анна Николаевна
Инженер, 7 лет опыта
Выбрать специалиста
Специалист Иванов Артур Вячеславович
Иванов
Артур Вячеславович
Инженер, 12 лет опыта
Выбрать специалиста
Специалист Васильев Николай Михайлович
Васильев
Николай Михайлович
Инженер, 11 лет опыта
Выбрать специалиста

Фотографии наших работ


Популярные вопросы у клиентов

Популярные вопросы у клиентов
Зачем нужен проект бассейна?
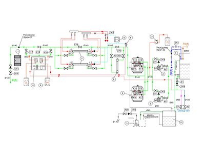
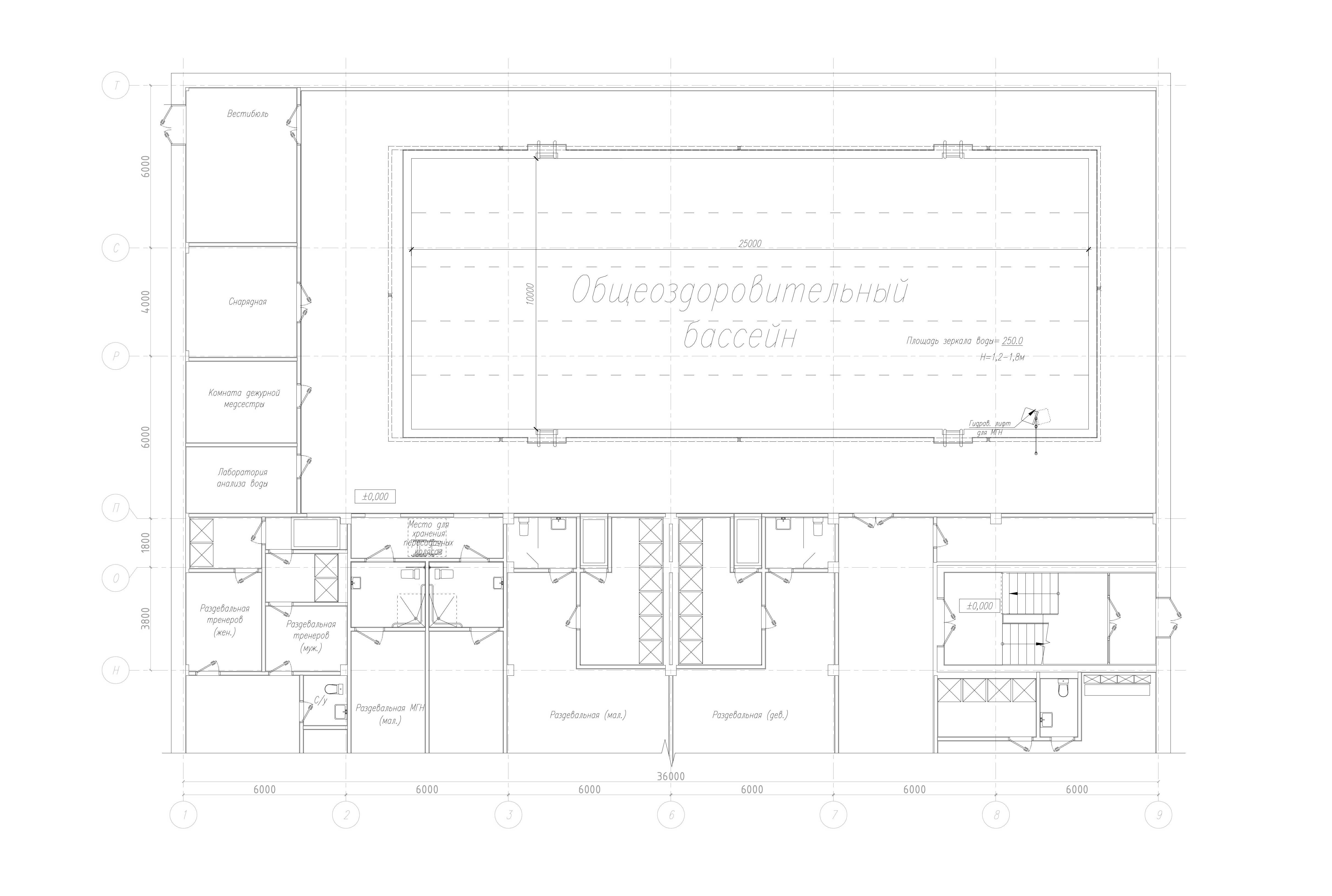
Проект бассейна – это технический документ, гарантирующий правильное поэтапное строительство объекта. В нем подробно описываются все этапы строительства, от установки оборудования до финишной отделки. Грамотное проектирование минимизирует риск  ненужных  расходов.
Требуется ли в бассейне подпитка свежей водой?
Да, во всех общественных бассейнах, особенно детских, обязательна регулярная подпитка свежей водой для поддержания качества и обновления воды в чаше.
Как часто чистить бассейн и каким методом?
Механическая очистка, включающая удаление мусора, рекомендуется проводить ежедневно. При интенсивном использовании бассейна фильтрация воды осуществляется в течение пяти часов в сутки. Также необходима дезинфекция воды для предотвращения размножения бактерий и других микроорганизмов. Для повышения эффективности обеззараживания можно установить специализированные системы.
Можно ли заменить старую пленку ПВХ на новую?
Да, замена старой пленки ПВХ на новую возможна. После осмотра бассейна специалист оценит состояние поверхности чаши и борта, а также определит необходимость дополнительных работ. В некоторых случаях может потребоваться замена закладных деталей для обеспечения долговечности нового покрытия и гарантии на выполненные работы.
Что делать, если бассейн протекает?
Для точной диагностики причин протечки требуется обследование объекта специалистом. Причины могут быть различными: нарушение гидроизоляции, трещины в конструкции и т.д.

Контакты

Адрес:
603126, г. Нижний Новгород, ул. Родионова, дом 165, корпус 12, помещение 2
Телефон:
E-mail:
Время работы:
пн-сб: с 8:30 до 17:30